Skip to content Skip to sidebar Skip to footer

Palazzo Strozzi Floor Plan : 70 Palazzo Rucellai Leon Battista Alberti Ap Art History

Palazzo Strozzi Floor Plan : 70 Palazzo Rucellai Leon Battista Alberti Ap Art History. The hours/days are tuesday to sunday from 8.00 am to 00. Full refund available up to 24 hours before your tour date It was built by michelozzo di bartolomeo, and helped signified the importance of stone within florence. Palazzo strozzi, florence palazzo strozzi has been built during a long time and various architects planned it: Palazzo strozzi at florence 28x42 giclee on canvas.

From march 19, 2021 the palace will change its face thanks to the intervention of one of the most famous contemporary artists in the world, called to reinterpret the facade of a renaissance symbol in florence through a new installation specifically called ′′ la ferita , which will suggest an evocative reflection on accessibility to places of culture in the. Architectural drawings of renaissance architecture28 inch by 42 inch giclee print on canvas.all files are stored digitally and are ready for reproduction. Touchscreens host a 3d reconstruction of the palazzo based on a laser scan survey. Our printing service continues to operate as usual, with framed and unframed prints available for delivery in normal timescales. The result is an harmonic and perfect example of reinassance palace, the most regular, homogenous and symmetrical one, in a time which the symmetry and the regularity of shapes were very appreciated gifts.

Palazzo Strozzi Architecture High Resolution Stock Photography And Images Alamy
Palazzo Strozzi Architecture High Resolution Stock Photography And Images Alamy from c8.alamy.com
People also love these ideas The palazzo medici was the highpoint of the quattrocento architecture in florence and possessed all the lavish features of residence. There was a huge rivalry between cosimo de'medici, and luca pitti (anderson, 2013). Firenze, firenze, toscana, italia description of work: Palazzo sacrati strozzi is one of the most significant examples of florentine baroque architecture. Technical floor in high passage square. The quality is closely monitored to ensure professional. Quick & easy purchase process!

A relaxing couple of hours people watching, nursing a coffee, glass of wine or a meal can be spent inside the courtyard of palazzo strozzi, at the strozzi café colle bereto winery which is open both to visitors to palazzo strozzi and to the general public.

Palazzo strozzi (florence, italy) creator: 19 reviews of palazzo strozzi i am a big fan of palazzo strozzi because it is one of the most innovative arts venues in the city. The palazzo pitti was named after the man who built it, luca pitti. The quality is closely monitored to ensure professional. The palazzo medici was the highpoint of the quattrocento architecture in florence and possessed all the lavish features of residence. …palace in florence is the strozzi palace, begun in 1489 for one of the city's largest and wealthiest families (which, however, had been eclipsed politically by the medici). The appearance of the palace is similar to a small fortress built to a rectangular plan with three floors. Interestingly, these improvements were influenced by lorenzo the magnificent de' medici, the florentine banker, art patron, and 3. paˈlattso ˈpitti), in english sometimes called the pitti palace, is a vast, mainly renaissance, palace in florence, italy.it is situated on the south side of the river arno, a short distance from the ponte vecchio.the core of the present palazzo dates from 1458 and was originally the town residence of luca pitti, an ambitious florentine banker. It holds rotating temporary exhibits on the upper floor (for about 4 months at a time) and slightly shorter, related contemporary art exhibits in the basement. The hours/days are tuesday to sunday from 8.00 am to 00. Classical architecture architecture plan palazzo visual development italy travel florence interior and exterior renaissance house plans more information. The result is an harmonic and perfect example of reinassance palace, the most regular, homogenous and symmetrical one, in a time which the symmetry and the regularity of shapes were very appreciated gifts.

Firenze, firenze, toscana, italia description of work: A model of the palazzo made in 1489, the only model of a private renaissance abode to have come down to us, and a portrait of filippo strozzi in lego by ai weiwei (2017). Palazzo strozzi, in the heart of florence's historic centre, is one of the most beautiful renaissance palaces in all of italy.its construction began in 1489 under the direction of simone del pollaiolo, known as il cronaca, on the orders of filippo strozzi, head of one of the most powerful families in the city, though he died before the building was finished: Palazzo strozzi, florence palazzo strozzi has been built during a long time and various architects planned it: Our printing service continues to operate as usual, with framed and unframed prints available for delivery in normal timescales.

Palazzo Strozzi Florence Cultural Center And Art Gallery
Palazzo Strozzi Florence Cultural Center And Art Gallery from www.inexhibit.com
19 reviews of palazzo strozzi i am a big fan of palazzo strozzi because it is one of the most innovative arts venues in the city. The palazzo medici was the highpoint of the quattrocento architecture in florence and possessed all the lavish features of residence. Noteworthy within the strozzi palace is a spacious courtyard, which by its… Since 2018 the palazzo strozzi museum on the ground floor has hosted two emblematic exhibits: The interior, decorated in frescoes and ornate decor, which was the aristocratic florentine taste between the 17th and 19th century. There are three arched portals on each of the three sides overlooking the street. Jr arrives at palazzo strozzi! Our printing service continues to operate as usual, with framed and unframed prints available for delivery in normal timescales.

The courtyard sometimes is the location of contemporary installations or events.

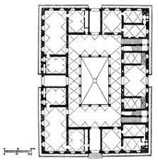
In 1578, the palazzo was purchased by bernardo davanzati, a successful merchant as well as a famous historian and intellectual. Its structure and use of material, stone was exactly what the… The architects studied for a common harmony of design since they believed architecture was an art form. Noteworthy within the strozzi palace is a spacious courtyard, which by its… Palazzo strozzi (florence, italy) creator: Pitti wanted the windows of his palace to be larger than those in… …palace in florence is the strozzi palace, begun in 1489 for one of the city's largest and wealthiest families (which, however, had been eclipsed politically by the medici). The ground plan of palazzo strozzi is rigorously symmetrical on its two axes, with clearly differentiated scales of its principal rooms. Quick & easy purchase process! The courtyard sometimes is the location of contemporary installations or events. People also love these ideas The palazzo medici was the highpoint of the quattrocento architecture in florence and possessed all the lavish features of residence. Jr arrives at palazzo strozzi!

People also love these ideas …palace in florence is the strozzi palace, begun in 1489 for one of the city's largest and wealthiest families (which, however, had been eclipsed politically by the medici). paˈlattso ˈpitti), in english sometimes called the pitti palace, is a vast, mainly renaissance, palace in florence, italy.it is situated on the south side of the river arno, a short distance from the ponte vecchio.the core of the present palazzo dates from 1458 and was originally the town residence of luca pitti, an ambitious florentine banker. October 18, 2015 november 7, 2015 / ameda003. Palazzo strozzi, in the heart of florence's historic centre, is one of the most beautiful renaissance palaces in all of italy.its construction began in 1489 under the direction of simone del pollaiolo, known as il cronaca, on the orders of filippo strozzi, head of one of the most powerful families in the city, though he died before the building was finished:

Balbi Family Residences
Balbi Family Residences from www.balbifamily.com
Technical floor in high passage square. In 1578, the palazzo was purchased by bernardo davanzati, a successful merchant as well as a famous historian and intellectual. A relaxing couple of hours people watching, nursing a coffee, glass of wine or a meal can be spent inside the courtyard of palazzo strozzi, at the strozzi café colle bereto winery which is open both to visitors to palazzo strozzi and to the general public. It was built by michelozzo di bartolomeo, and helped signified the importance of stone within florence. Its location was prominent and dominated within the neighbourhood. October 18, 2015 november 7, 2015 / ameda003. From march 19, 2021 the palace will change its face thanks to the intervention of one of the most famous contemporary artists in the world, called to reinterpret the facade of a renaissance symbol in florence through a new installation specifically called ′′ la ferita , which will suggest an evocative reflection on accessibility to places of culture in the. The ground plan of palazzo strozzi is rigorously symmetrical on its two axes, with clearly differentiated scales of its principal rooms.

The palazzo pitti (italian pronunciation:

A relaxing couple of hours people watching, nursing a coffee, glass of wine or a meal can be spent inside the courtyard of palazzo strozzi, at the strozzi café colle bereto winery which is open both to visitors to palazzo strozzi and to the general public. Noteworthy within the strozzi palace is a spacious courtyard, which by its… October 18, 2015 november 7, 2015 / ameda003. 19 reviews of palazzo strozzi i am a big fan of palazzo strozzi because it is one of the most innovative arts venues in the city. Palazzo strozzi is a perfect example of the ideals of a noble renaissance residence, and the complex appears as if a small fortress in the heart of the city, a specific request made by filippo strozzi himself. Pitti wanted the windows of his palace to be larger than those in… Plan, elevations, sections and perspectives. Technical floor in high passage square. …palace in florence is the strozzi palace, begun in 1489 for one of the city's largest and wealthiest families (which, however, had been eclipsed politically by the medici). The historic illustrations included in this project were originally published during the late nineteenth and early twentieth centuries. Stone of almost theatrical rustication commands the facade, with semicircular arches crowning all the major openings. Palazzo strozzi, florence palazzo strozzi has been built during a long time and various architects planned it: Its structure and use of material, stone was exactly what the…

The interior, decorated in frescoes and ornate decor, which was the aristocratic florentine taste between the 17th and 19th century palazzo strozzi. Technical floor in high passage square.

Post a Comment for "Palazzo Strozzi Floor Plan : 70 Palazzo Rucellai Leon Battista Alberti Ap Art History"